PIAZZA VITTORIO – VIA BONAFOUS
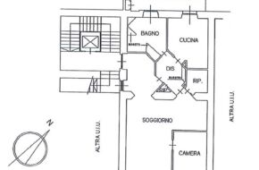
Vendiamo in stabile d’epoca a 50 metri da piazza Vittorio Veneto piacevole appartamento al piano alto con ascensore composto da ingresso living su soggiorno, cameretta da pranzo, ampia cucina abitabile, camera da letto, grande bagno e ripostiglio.
Due arie, su via Bonafous e interno cortile, con vista aperta.
Buona esposizione.
Per informazioni contattare De Sario Immobili 335.812.50.70
Cl. en E, ipe 98,04


















