RONCHI 10 – IL FASCINO DELLA STORIA RIPRENDE VITA NEL CUORE DI CAVORETTO All’interno di una residenza storica dell’800, a pochi minuti dal centro di Torino, vengono realizzati 4 nuovi appartamenti secondo la filosofia del restauro conservativo. Gli ambienti interni sono studiati, nel massimo rispetto del carattere dell’epoca della residenza, per garantire un comfort ottimale pur mantenendo la possibilità di personalizzare i dettagli. All’esterno ciascuna unità immobiliare si affaccia su ampi terrazzi e/o giardini privati.
L’utilizzo di materiali e tecnologie di ultima generazione, in particolare un impianto termico all’avanguardia e l’installazione di fonti rinnovabili, permettono di classificare gli immobili in classe energetica A – garanzia di risparmio energetico e rilevanti detrazioni fiscali.
Disponibilità di box e posti auto.
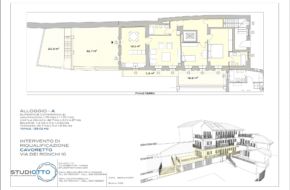
Questo annuncio si riferisce all’alloggio A “GIALLO”, posto al piano terra (1° f.t.) e composto di ampia cucina abitabile con zona pranzo affacciata su splendida terrazza di 44 mq, salotto, due camere, due bagni, balcone e cortiletto/giardino privato di 43 mq.
Non perdere un’occasione unica. Per informazioni De Sario Immobili 335.812.5070



















